Taza Treats, Jhamsikhel, Kathmandu, Nepal

Taza Treats, Jhamsikhel, Kathmandu, Nepal

Taza Treats Final Design

Taza Treats, Jhamsikhel
We have been doing many projects for commercial clients, including cafes, boutiques, and showrooms.

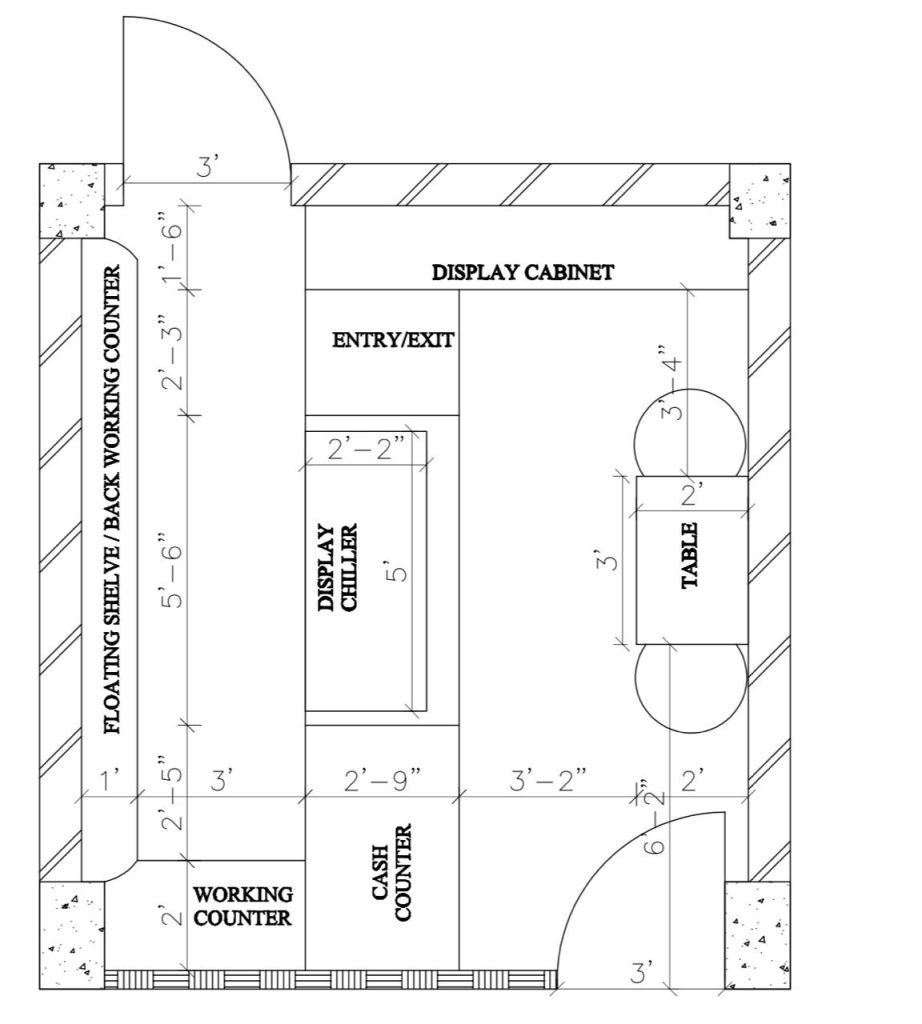
Decor Debut has completed the interior design of Taza Treats located at Jhamsikhel, Kathmandu. The total area of this boutique dessert shop is 150 sq. ft., and the space was designed to be both functional and visually appealing.

The quality of materials used, such as parquet flooring, tiles cladding, and customized wooden furniture, is of a premium standard. We used sal woodMDF board, and CNC board for customized detailing and strong woodwork.

 

taza-treats-layout

There are indoor plants placed at different corners to enhance the freshness and aesthetic beauty of the interior. We also used mirrors to create the illusion of a larger space and add depth to the design.

The entire space is fully furnished with polished finishing, creating a premium feel for customers. Paints were carefully selected to match the overall theme of the brand.

Most importantly, we had a very limited time—just 15 days—to complete the entire project. We handed over the project on time, and the client was fully satisfied with the outcome. They are now one of our recurring clients.